Klubbhusprojekt extra årsmöte

Klubbhusprojektet

Det har under många år varit tal om att bygga nytt klubbhus eller renovera befintligt klubbhus. 

Årsmötet hösten 2021 gav styrelsen i uppdrag att gå vidare med alternativ 2 och 3 som ligger till grund för kommande kravspecifikation

  1. Renovera befintligt klubbhus med samma funktioner
  2. Renovera, uppgradera och bygga ut i mindre omfattning
  3. Renovera, uppgradera och bygga ut i större omfattning
  4. Riva och bygga helt nytt

Kravspecifikationen såg/ser ut enligt följande:

Skapa loungeyta för medlemmar att använda utanför restaurangens öppettider

  • En foajé där man når alla kärnfunktionerna på ett ställe i en öppnare atmosfär, kansli, shop och restaurang.
  • Förbättrade omklädningsrum med samma yta för damer och herrar, fler toaletter
  • Exteriört lyft med nytt tak och ny fasadfärg
  • Uppgraderade tekniska system (uppvärmning, ventilation, el, nätverk)
  • Förbättrade arbetsplatser för att möta aktuella arbetsmiljökrav

Då det ekonomiska läget skiftade, med hög inflation och stigande räntor, lades projketet på is. Nu ser dock det ekonomiska läget mycket bättre ut.

  • Inflationen på väg ner
  • räntorna har en positiv utveckling med kommande sänkningar av styrräntan
  • byggbranschen har problem med att få nya projekt, vilket kan påverka prisbilden positivt samt att klubben har en bra ekonomi.

Anbud

Klubben har gått ut med anbud och tre byggare har lämnat in kostnadskalkyler inklusive renovering av "Ladan". 

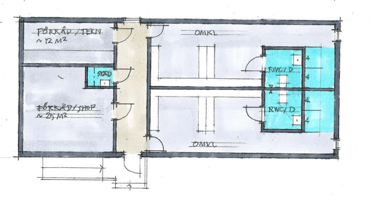
Ett smakprov

Nedan visas ett smakprov hur det kommer att se ut i framtiden. Dessa bilder finns även att se i klubbhusets foaje.

 

Väl mött/ Styrelsen